2022
INDIVIDUAL HOUSE RENOVATION
VIDEO PRESENTATION
EXTENDED VERSION 3:35 MIN
VIDEO PRESENTATION
SOCIAL MEDIA REEL 90 SEC
INTRODUCTION
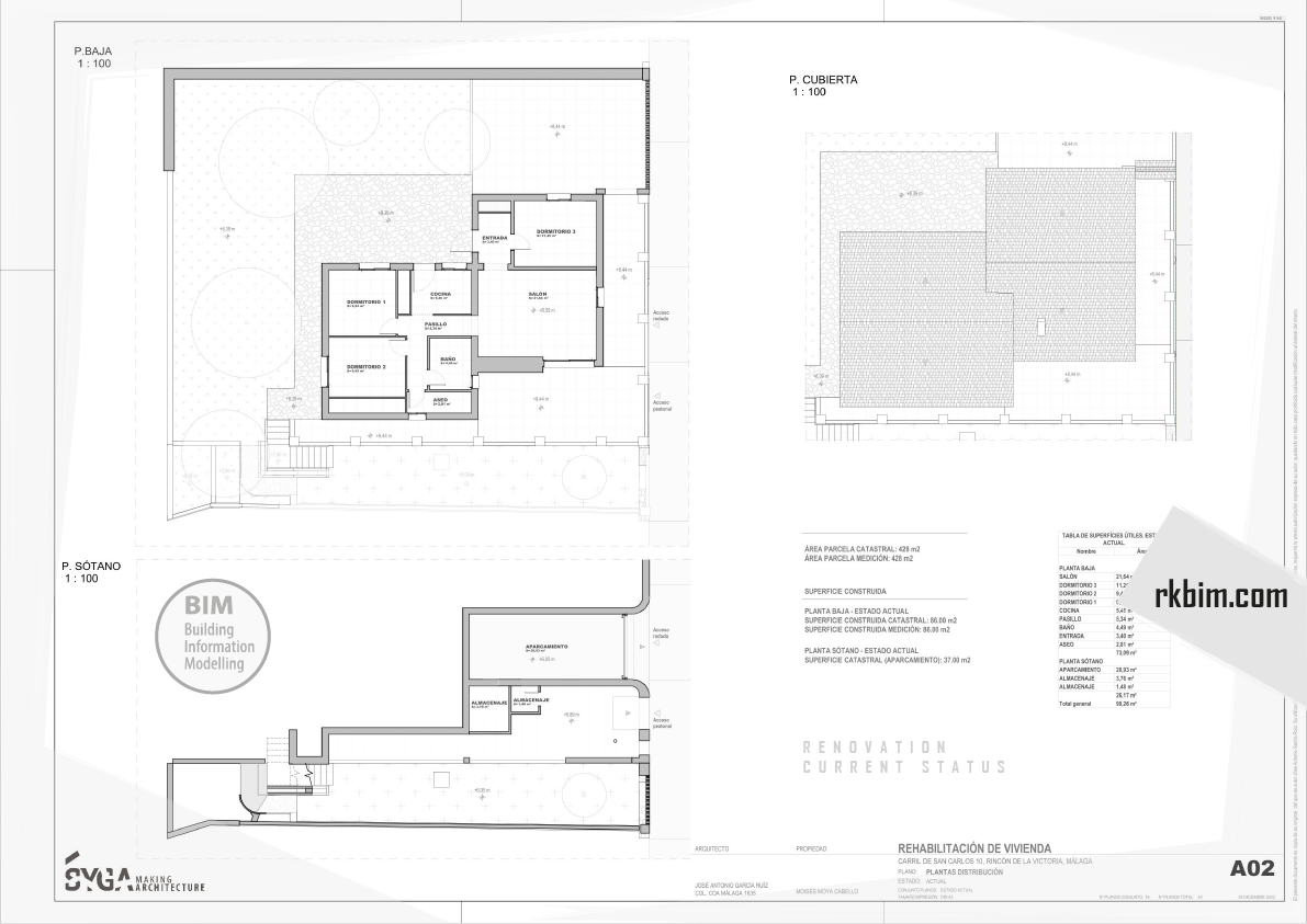
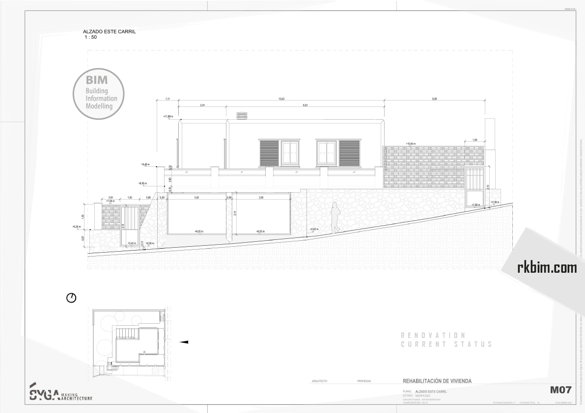
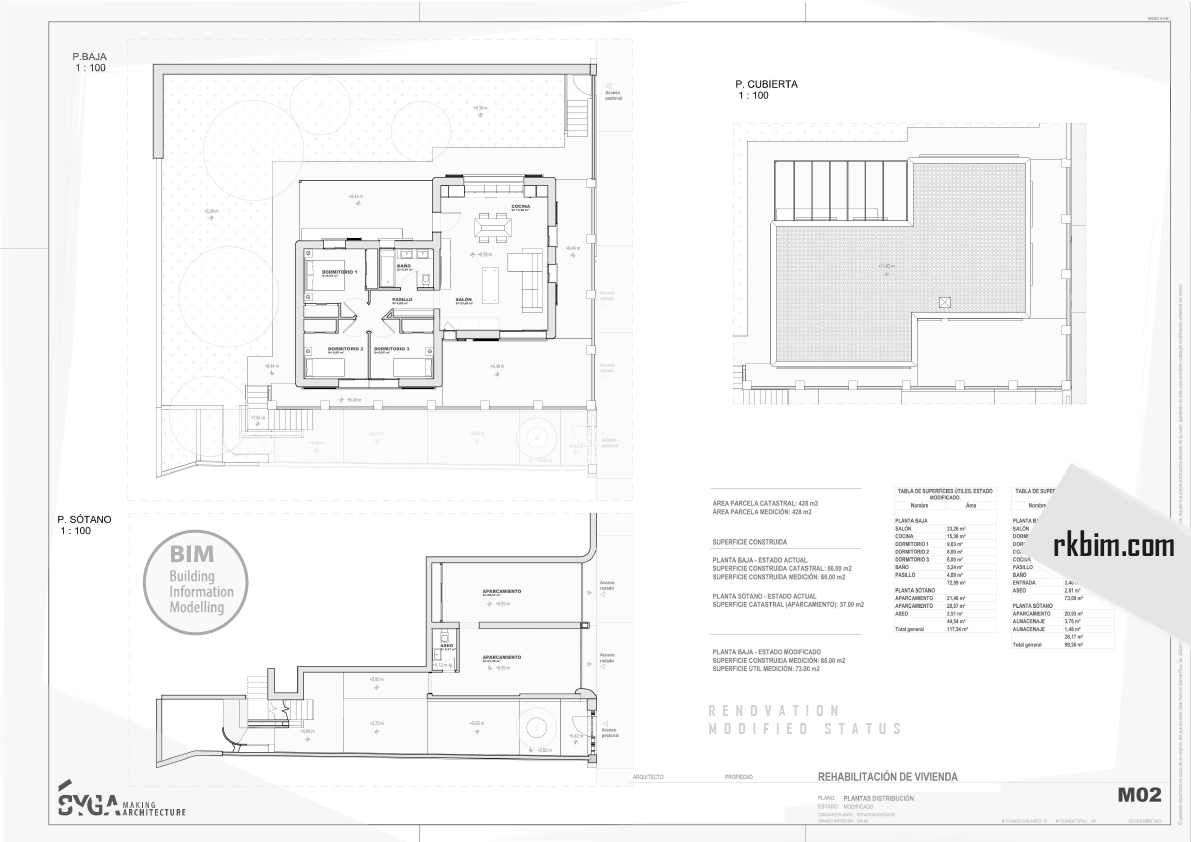
Home renovation with current and modified status.
In the preliminary design phase, different design options were offered to the client.
A model of the current phase and a model for the final phase have been created.
For the plans, a plan file has been created where the two previous models have been linked, mapping the phases.























